Najważniejsze cechy:
35 m2 powierzchni użytkowej
4 pomieszczenia w wersji standardowej
Taras o powierzchni 7,84 m2 w standardzie
Wymaga pozwolenia na budowę
Możliwość samodzielnego montażu
Możliwość modyfikacji projektu domku
Wykonany z wysokiej jakości świerku skandynawskiego
Doskonale sprawdzi się jako domek letniskowy czy domek na działkę
24 miesięczna gwarancja
Inne wersje domku:
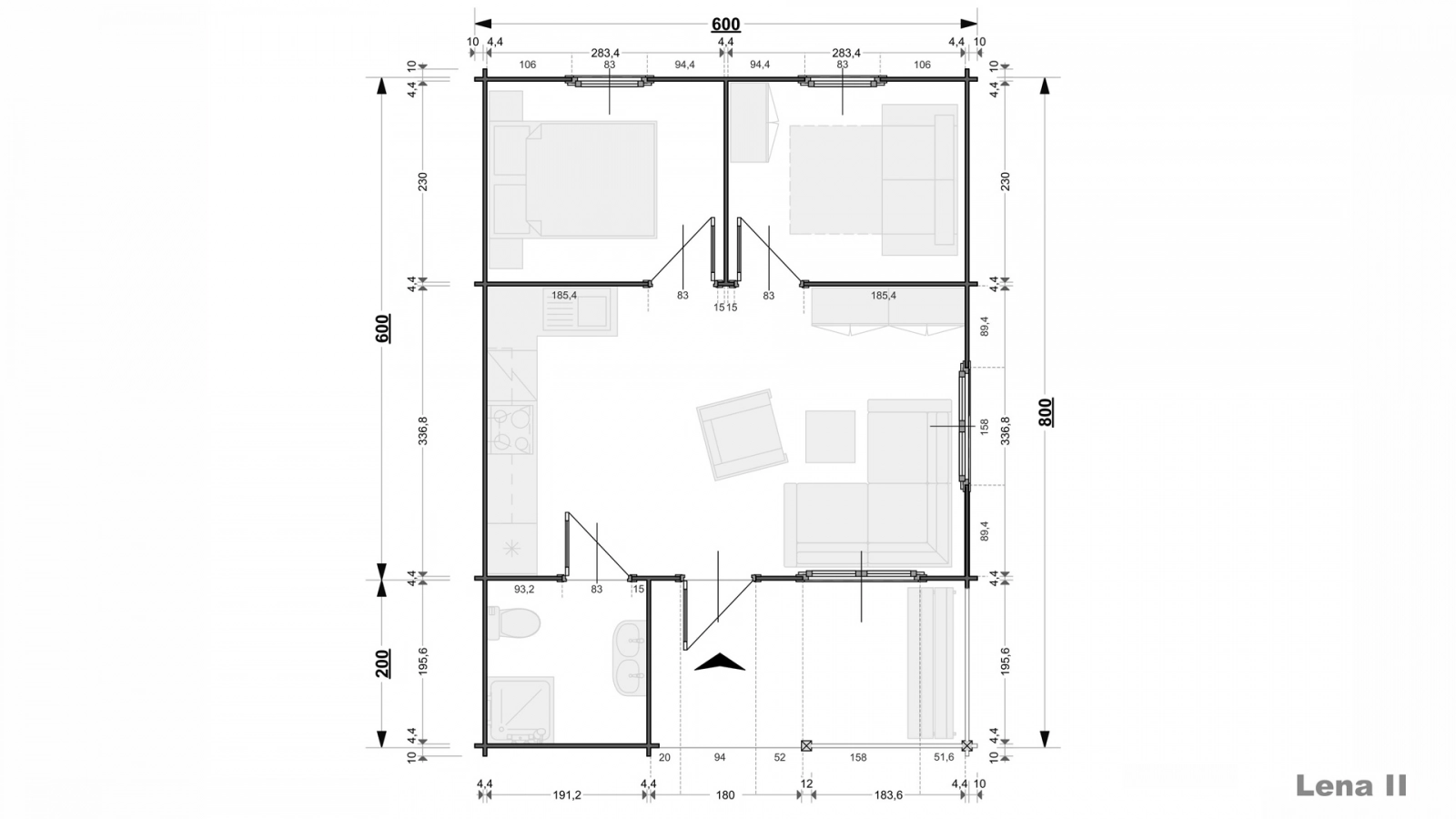
Wykonany ze świerku skandynawskiego drewniany domek letniskowy Lena II sprawdzi się jako domek wypoczynkowy nawet dla 6 osób. Będący modyfikacją projektu drewnianego domku Lena I, domek Lena II różni się niewielkim pokojem umieszczonym z lewej strony tarasu, powiększającym tym samym powierzchnię użytkową części zabudowanej.
Całkowity zewnętrzny wymiar Leny II z wystającymi elementami konstrukcji wynosi 600×800 cm, natomiast wymiar powierzchni zabudowy części mieszkalnej bez wystających elementów konstrukcyjnych wynosi 580×780 cm dając 35,46 m2 powierzchni użytkowej. Ściany, podłoga i dach wykonane są z litych balików świerkowych o grubości kolejno: 45 mm, 28 mm i 19 mm. Domek posiada zadaszony taras o wymiarach zewnętrznych 392×200 cm i powierzchni użytkowej 7,84 m2.
Na wnętrze drewnianego domku Lena II składają się 4 pomieszczenia. Największe pomieszczenie ma 18,53 m2 powierzchni i najczęściej jest przeznaczane na pokój dzienny z aneksem kuchennym. Pokój prowadzi do trzech pozostałych pomieszczeń: dwóch umieszczonych z tyłu sypialni oraz najmniejszego pomieszczenia znajdującego się od frontu, w którym zazwyczaj urządza się łazienkę. Domek posiada 4 uchylno-rozwierane okna w tym dwa podwójne w największym pomieszczeniu i dwa mniejsze, pojedyncze w sypialniach. Do domku prowadzą solidne jednoskrzydłowe drzwi drewniane. Duży taras ochroni przed deszczem i słońcem pozwalając na przyjemne spędzanie czasu na świeżym powietrzu. Dzięki prostej budowie domek można zaaranżować niemal według każdego pomysłu. Razem z domkiem dostępny jest szereg opcji dodatkowych zapewniających montaż, malowanie czy pokrycie dachu gontem bitumicznym.







